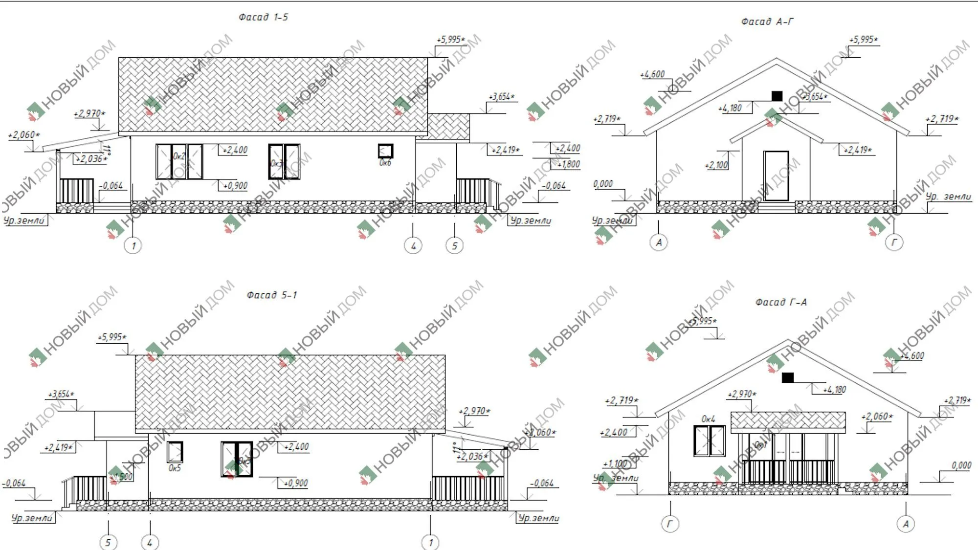
Одноэтажный дом «Дора» 101 м2 с террасой
- Дом имеет общую площадь - 101 м²
Нужна консультация?
Наши специалисты ответят на любой интересующий вопрос
Характеристики
| Габариты | 11,4x10,6 |
| Общая площадь | 101 м² |
| Этажность | Одноэтажный |
Проекты
Услуги
Если вас не устраивают готовые решения каркасных домов, и вы хотели бы иметь в конечном итоге уникальное загородное жилье из СИП-панелей? Компания “Новый Дом” готова сделать для вас эксклюзивное предложение. Теперь индивидуальное проектирование вы можете заказать по выгодной цене.
Проектирование домов, тяжелый этап строительства. От него зависит правильное сооружение дома, которое будет подходить для комфортного жилья. И если в этом деле нет опыта, то стоит обратиться в компанию, которая обладает необходимыми знаниями и ресурсами для проектирования частных домов. Вы можете воспользоваться услугами компании «Новый Дом».На сайте имеется каталог, в котором можно посмотреть варианты домов с проектами. К каждой позиции приложено фото, фрагмент чертежа, указана подробная характеристика. В нем можно подобрать подходящий вариант, согласовать с менеджерами и после приобрести по приемлемой цене.
Преимущества обращения в нашу компанию
Компания «Новый Дом» проводит проектирование домов в Брянске . Мы работаем с проектами любой сложности. И главное готовый чертеж и план поможет произвести качественное строительство, на его основе можно произвести расчеты, определить требуемый объем материалов и выполнить другие мероприятия.
Преимущества:
- Большой выбор готовых проектов;
- Невысокая стоимость проектирования дома;
- Соблюдение пожеланий и замечаний заказчика;
- Можно заказать дом под индивидуальное строительство;
- Согласование этапов работы.
Если имеются вопросы, то можно проконсультироваться со специалистами компании. Они помогут подобрать подходящий проект.
Технологии строительства не стоят на месте. Современному человеку хочется жить в уникальном доме с индивидуальной планировкой. Компания «Новый дом» предлагает услуги проектирования домов на выгодных условиях и по доступной стоимости, при этом учитываются предпочтения заказчика и тщательно прорабатывается стиль.
Архитекторы наблюдают за этапами строительства. При разработке проекта предлагается единая стилевая композиция внутренней и внешней отделки дома. Наши специалисты готовы воплотить в жизнь идеи любой сложности. Мы строим те дома, о которых мечтают наши заказчики. Продуманная планировка в проектировании домов гарантирует безопасность и функциональность будущего здания.
Рассчитать проектное предложение
В нашем каталоге есть готовые решения. Кроме того, специалисты компании готовы предложить эксклюзивные проекты, с учётом бюджета и пожеланий клиента. Например, общественные здания. Применяются надежные технологии и материалы. Их качество проверено десятилетиями. Грамотному специалисту под силу превратить малоэтажное строение в произведение искусства. Доверьте опытным инженерам проектирование домов, цена будет зависеть от архитектурной сложности, площади объекта и объема работ. Мы уже построили сотни жилых домов, включая коттеджи и таунхаусы.
Изготовление домокомплектов из структурных изоляционных панелей (СИП) компания «Новый Дом» осуществляет на собственных производственных площадях с 2009 года. На территории цеха в 1000 м2 оборудованы производственные линии, где выпускаются СИП панели, необходимые для возведения внешних стен, перекрытий, внутренних стен и перегородок для объектов ИЖС (индивидуального жилищного строительства) и коммерческой недвижимости.
Технология изготовления домокомплектов из СИП панелей
Главный агрегат производственной линии - это станция нанесения однокомпонентного полиуретанового клея. Технологический процесс нанесения клея включает в себя автоматическую рециркуляцию клея в паузах между циклами нанесения через 35 форсунок и подготовку клея в специальной емкости. Подача клея из бака происходит через насосы, а скорость регулируется за счет пульта управления. Отвердителем в этом процессе выступает вода, распределяемая через форсунки.
После нанесения полиуретанового клея и точной укладки СИП панели (партиями по 4 штуки) подаются транспортерными лентами в пневмопрессы. Воздушные подушки пневмопресса создают равномерное давление на поверхность каждой панели. Это необходимое условие приклеивания обшивки (плиты ОСП-3) к пенополистиролу всей поверхностью. Это важно для прочности СИП панели. Позиционирование панелей в прессах управляется фотоэлементами. Время выдержки панелей под прессом и давление пресса определяется маркой клея и задаются оператором на пульте управления. Пневмопрессы очень мощные. При подаче давления в подушки в 1 атм. нагрузка на панели составляет 35 тонн.
Суть СИП-технологии в ее производственной части заключается в создании из двух исходных нового композиционного строительного материала с техническими характеристиками, превышающими изначальные характеристики его составляющих (пенополистирольных плит и плит ОСП-3).
Следующий этап работы производственного цеха – раскрой СИП панелей в строгом соответствии с архитектурно-планировочным решением и сборочными чертежами с дальнейшей выборкой пенополистирола под обрусовку сухим строганным брусом не более 18 %-ов влажности. СИП панели для внешних/внутренних стен и перегородок в большинстве случаев выходят из цеха в обрусованном виде, максимально готовые к сборке на строительном объекте. СИП-технология предполагает применение исключительно сухого строганного бруса камерной сушки в качестве замкового элемента для стыковки СИП панелей по принципу «шип-паз».
Далее готовый к сборке домокомплект поступает на склад готовой продукции, после чего изделия подлежат доставке на объект заказчика. Складские площади позволяют нам предоставлять услугу ответственного хранения домокомплектов по индивидуальным запросам заказчиков.
Для поддержания оперативных сроков производства на СИП продукцию компания «Новый Дом» инвестирует в складские запасы плит ОСП-3, пенополистирольных плит, полиуретанового клея, сухого строганного бруса, специальной монтажной пены и строительного крепежа.
Производственные мощности нашей компании позволяют удовлетворять спрос на качественные СИП панели и домокомплекты из СИП панелей не только у клиентов Орловского региона, но и соседних – Брянской, Курской, Тульской, Калужской – областей.
Компания «Новый Дом» приглашает строительные компании из любого региона нашей страны к сотрудничеству по СИП панелям (ОСП-3/ППС/ОСП-3) и домокомплектам на основе типовых и индивидуальных проектных решений для малоэтажного частного строительства на выгодных коммерческих условиях. Большой накопленный нами опыт производства качественной СИП продукции позволяет нашим торговым партнерам успешно реализовывать сложные строительные проекты в сегменте ИЖС и коммерческой недвижимости.
Для строительства нового жилого объекта на сложном грунте компания «Новый Дом» рекомендует купить винтовой фундамент на выгодных условиях.
Для эксплуатируемых строений, независимо от предназначения, важны вопросы надежности и долговечности. Для строительства нового жилого объекта на сложном грунте компания «Новый Дом» рекомендует установить свайный фундамент по выгодным ценам. Этот вариант конструкции решает проблемы владельцев участков на сложном рельефе.
Выбор конструкции фундамента
Профессионалы компании «Новый Дом» занимаются строительством быстровозводимых домов по канадским технологиям. Для ускорения темпа монтажа предлагается свайно-винтовой фундамент, соответствующий качеству материалов и трудозатратам.

Опоры винтового фундамента выступают, как главные несущие и обязаны отвечать стандартам нагрузок на эти силовые элементы. Перед заказом монтажа рекомендуется грамотно подобрать сваи под специфику местности и свойства почвы, учитывать конструктивные нюансы строения.
Достоинства проекта
Технология обустройства фундаментов на винтовых сваях разрешает быстро построить дом на сложном грунте. Мы поможем рассчитать параметры и стоимость с учетом всех расходов с гарантией.
Универсальные качества винтовых свай:
- экономия до 60–70% (в сравнении стандартными фундаментами);
- защита конструкции при пучении грунта;
- исключение затрат на обустройство подъездов и использование специализированной техники;
- продолжительные сроки эксплуатации;
- использование конструкций для существующих разновидностей грунта, кроме скалистого либо железняка;
- допустимые условия строительства в любой сезон года.
Компания рекомендует заказать установку винтового фундамента и быстро закончить возведение дома. Для более подробной консультации свяжитесь с нашими специалистами.

