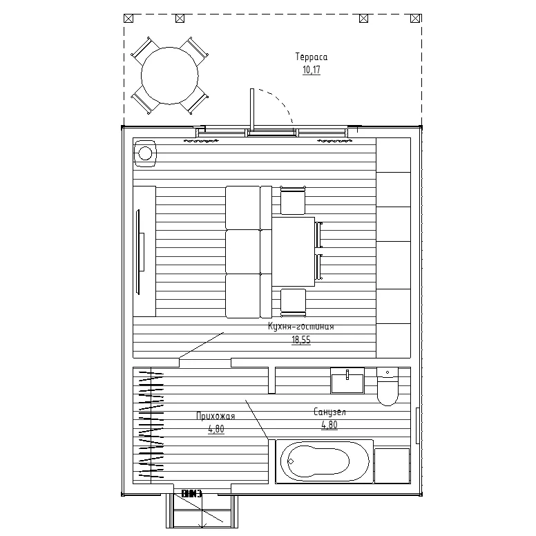
Дом «ARK» 28 кв.м
Заказать проект
Задать вопрос
Проект коттеджа «ARK» имеет следующие характеристики:
- Дом имеет общую площадь - 28 м²
- Этажность - Одноэтажный
Подробнее
Комфортный микроклимат
Избыточная прочность
Отсутствие усадки
Нужна консультация?
Наши специалисты ответят на любой интересующий вопрос
Задать вопрос
Объекты домов на заказ
Характеристики
| Общая площадь | 28 м² |
| Этажность | Одноэтажный |

