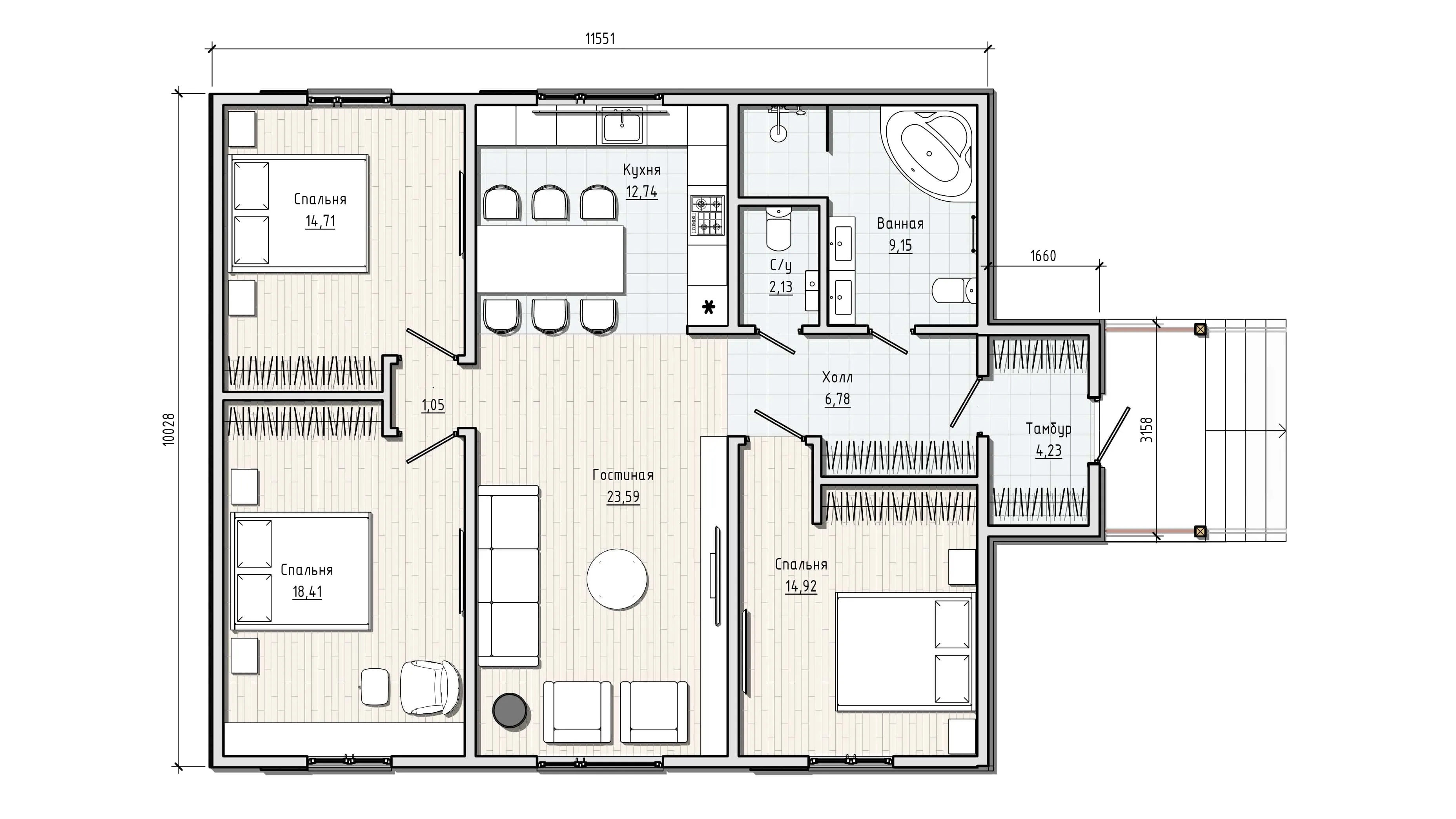
Одноэтажный дом «Бриз» 110 м2
- Дом имеет общую площадь - 110 м²
- Количество спален - 3
- Этажность - Одноэтажный
Нужна консультация?
Наши специалисты ответят на любой интересующий вопрос
Характеристики
| Габариты | 10х13 |
| Общая площадь | 109,7 м² |
| Жилая площадь | 73 м² |
| Этажность | Одноэтажный |
Проекты
Услуги
Этапы строительства
1 этап — Производство и доставка домокомплекта.
После заключения договора на производство отправляется заказ на изготовление домокомплекта согласно выбранному проекту. Далее следует доставка домокомплекта на участок заказчика, его приемка согласно проектной документации и раскладка на участке для удобства сборки.
2 этап — Монтаж фундамента.
Как правило в качестве фундамента для дома из СИП-панелей используют свайно-винтовой фундамент, мелкозагубленный ленточный, столбчатый или монолитную плиту. И все же наиболее распространенным вариантом остается свайно-винтовой, ввиду всесезонности и простоты его монтажа, экономии средств и времени на его установку.
3 этап — Обвязка фундамента брусом
Обвязочный брус равномерно распределяет нагрузку на фундамент и служит основанием для монтажа перекрытия первого этажа.
4 этап — Монтаж перекрытия первого этажа.
На обвязочный брус монтируются панели перекрытия. Они же служат полом и основанием стен Вашего будущего дома. Для защиты от влаги обвязочный брус и панели снизу покрываются битумным праймером. Сверху на панели перекрытия крепится обвязочная доска стен.
5 этап — Монтаж стен первого этажа.
На этом этапе к обвязочной доске в соответствии с проектной документацией крепятся панели стен, монтируются дверные и оконные проемы. Межэтажное перекрытие чаще всего мы делаем из СИП панелей и изредка собираем из балок по желанию Заказчика.
6 этап — Строительство второго этажа.
Строительство второго этажа по своей сути повторяет все этапы и работы возведения первого этажа. Чердачное перекрытие отделяет верхний этаж от холодного чердака. Перекрытие мы выполняем также по СИП технологии. Второй этаж может быть мансардного типа полностью из СИП-панелей.
7 этап — Монтаж крыши.
На этом этапе собирается стропильная система крыши, монтируются мауэрлаты, коньковые балки.
8 этап — Установка окон и входных дверей.
После сборки дома устанавливаются окна и входные двери. Делать это можно сразу, т.к. дома из СИП-панелей не дают усадки!
9 этап — Монтаж кровельного покрытия.
Крыша из СИП-панелей может быть покрыта любым видом кровельного материала на Ваш вкус. Единственное требование — оставление вентиляционного зазора между панелями крыши и материалом кровли.
10 этап — Внешняя отделка и подвод коммуникаций.
У внешней отделки домов из СИП-панелей никаких ограничений не существует. Фасад дома может быть обшит сайдингом, блок-хаусом, фасадными панелями, отделан натуральным или искусственным камнем, облицован кирпичем или оштукатурен. Одновременно с работами по внешней отделке в Ваш дом могут быть проведены коммуникации.
11 этап — Внутренняя отделка
Многообразие современных материалов для внутренней отделки, например, одноэтажного дома, позволит Вам воплотить в жизнь любые дизайнерские решения. Стены, полы и потолок в доме уже идеально ровные и никакой дополнительной подготовки их не требуется. Отделку стен можно монтировать непосредственно на СИП-панель, либо предварительно обшив ее гипсокартоном. При этом, гипсокартон можно крепить без использования направляющих профилей. Напольное покрытие также может монтироваться непосредственно на панели, однако, мы все же советуем следовать рекомендациям производителя товара.
SIP-панели применяются для строительства домов по канадской технологии, бань, а также зданий общественного назначения. Компания “Новый Дом” имеет собственные производственные линии по их изготовлению.
Компания «Новый Дом» реализует СИП-панели в Брянске , выполненные из качественных и экологичных материалов. На заводе применяется только сертифицированное оборудование. Технология производства предполагает вакуумное прессование, которое обеспечивает надежную адгезию компонентов SIP панелей на молекулярном уровне. Дома, построенные из этого материала, окупаются менее чем за 20 лет, так как обеспечивают существенную экономию энергоресурсов. Наша компания предлагает лучшие цены на СИП-панели за штуку в Брянске .
Преимущества сотрудничества с компанией «Новый Дом»
- Цены от производителя;
- Высокое качество;
- Оперативная доставка;
- Профессиональная консультация.
Чтобы купить СИП-панели от производителя по доступной цене, свяжитесь с менеджерами нашей компании и оформите заказ.
SIP-панели применяются для строительства домов по канадской технологии, бань, а также зданий общественного назначения. Компания «Новый дом» имеет собственные производственные линии по их изготовлению.
Производство ведется на инновационном оборудовании и только из качественных материалов. Все этапы строго контролируются, поэтому брак отсутствует.
Особенности продукции
Размер СИП-панелей для строительства дома составляет 3,125-3,5 м2, толщина от 108 до 224 мм.
Для обшивки используется ОSB-3 плита, толщиной 9-12 мм, полностью соответствующая классу экологичности Е1 и высоким международным стандартам качества. Утеплитель - фасадный пенополистирол высокой плотности.
Купить СИП-панели в Брянске по выгодной цене
Цена зависит от особенностей конкретной конструкции, размеров и толщины. Для приобретения сэндвич-панелей с доставкой на участок, заполните заявку на нашем сайте. Наши менеджеры подскажут вам всю интересующую информацию и произведут предварительный расчет стоимости.
Для производства наших SIP-панелей мы используем только самые качественные материалы лучших и проверенных производителей, имеющиеся на мировом рынке строительства:
Обшивка
Плиты ОSB-3:
Производитель Kalevala (Карелия).
Класс экологичности по международным стандартам Е1.
Утеплитель
Фасадный пенополистирол ПСБ-С 25 Ф.
Плотность (16-17 кг/м3).
Производитель НовоПласт (Тульская обл., г. Алексин).
| Размеры панелей | Толщина СИП-панели, мм | Толщина ОСП, мм | Площадь панели, м2 |
Изготовление |
|---|---|---|---|---|
|
СИП Панель 2500х1250 |
108 мм | 9 мм |
3.125 м² |
до 5 дней |
| CИП Панель 2800х1250 | 3.5 м² | до 5 дней | ||
|
СИП Панель 2500х1250 |
110 мм | 10 мм | 3.125 м² |
до 5 дней |
| СИП Панель 2800х1250 | 3.5 м² | до 5 дней | ||
|
СИП Панель 2500х1250 |
114 мм |
12 мм |
3.125 м² |
до 5 дней |
|
СИП Панель 2800х1250 |
3.5 м² | до 5 дней | ||
|
СИП Панель 2500х1250 |
118 мм | 9 мм |
3.125 м² |
в наличии |
|
СИП Панель 2800х1250 |
3.5 м² | в наличии | ||
|
СИП Панель 2500х1250 |
120 мм | 10 мм |
3.125 м² |
в наличии |
|
СИП Панель 2800х1250 |
3.5 м² | в наличии | ||
|
СИП Панель 2500х1250 |
124 мм | 12 мм |
3.125 м² |
в наличии |
|
СИП Панель 2800х1250 |
3.5 м² | в наличии | ||
|
СИП Панель 2500х1250 |
158 мм | 9 мм |
3.125 м² |
в наличии |
|
СИП Панель 2800х1250 |
3.5 м² | в наличии | ||
|
СИП Панель 2500х1250 |
160 мм | 10 мм | 3.125 м² | в наличии |
|
СИП Панель 2800х1250 |
3.5 м² | в наличии | ||
|
СИП Панель 2500х1250 |
164 мм | 12 мм | 3.125 м² | в наличии |
|
СИП Панель 2800х1250 |
3.5 м² | в наличии | ||
|
СИП Панель 2500х1250 |
170 мм | 10 мм | 3.125 м² | до 5 дней |
|
СИП Панель 2800х1250 |
3.5 м² | до 5 дней | ||
|
СИП Панель 2500х1250 |
174 мм | 12 мм | 3.125 м² | до 5 дней |
|
СИП Панель 2800х1250 |
3.5 м² | до 5 дней | ||
|
СИП Панель 2500х1250 |
220 мм | 10 мм | 3.125 м² | до 5 дней |
|
СИП Панель 2800х1250 |
3.5 м² | до 5 дней | ||
|
СИП Панель 2500х1250 |
224 мм | 12 мм | 3.125 м² | до 5 дней |
|
СИП Панель 2800х1250 |
3.5 м² | до 5 дней |

