«Бытовка» 12 кв.м
Общая площадь - 12 м²
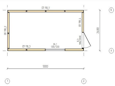
Габариты - 2.4х5 м
Этажность - 1 этаж
Высота - 2.5 м
Нужна консультация?
Наши специалисты ответят на любой интересующий вопрос
- Наружняя облицавка выполнена из профнастила (цвет можно выбрать любой), стена из С-8 кровля из С20.
- Дверь-сейф металлическая (900*2000)
- Окно пластиковое(1200*1200 створка глухая+поворотно откидная)
Возможно изменение расположения и размера окна и двери.
Изготавливаем строения любого типа и размера!!!!
Характеристики
| Общая площадь | 12 м² |
| Этажность | Одноэтажный |
Проекты
Услуги
Если вас не устраивают готовые решения каркасных домов, и вы хотели бы иметь в конечном итоге уникальное загородное жилье из СИП-панелей? Компания “Новый Дом” готова сделать для вас эксклюзивное предложение. Теперь индивидуальное проектирование вы можете заказать по выгодной цене.
Проектирование домов, тяжелый этап строительства. От него зависит правильное сооружение дома, которое будет подходить для комфортного жилья. И если в этом деле нет опыта, то стоит обратиться в компанию, которая обладает необходимыми знаниями и ресурсами для проектирования частных домов. Вы можете воспользоваться услугами компании «Новый Дом».На сайте имеется каталог, в котором можно посмотреть варианты домов с проектами. К каждой позиции приложено фото, фрагмент чертежа, указана подробная характеристика. В нем можно подобрать подходящий вариант, согласовать с менеджерами и после приобрести по приемлемой цене.
Преимущества обращения в нашу компанию
Компания «Новый Дом» проводит проектирование домов в Брянске . Мы работаем с проектами любой сложности. И главное готовый чертеж и план поможет произвести качественное строительство, на его основе можно произвести расчеты, определить требуемый объем материалов и выполнить другие мероприятия.
Преимущества:
- Большой выбор готовых проектов;
- Невысокая стоимость проектирования дома;
- Соблюдение пожеланий и замечаний заказчика;
- Можно заказать дом под индивидуальное строительство;
- Согласование этапов работы.
Если имеются вопросы, то можно проконсультироваться со специалистами компании. Они помогут подобрать подходящий проект.
Технологии строительства не стоят на месте. Современному человеку хочется жить в уникальном доме с индивидуальной планировкой. Компания «Новый дом» предлагает услуги проектирования домов на выгодных условиях и по доступной стоимости, при этом учитываются предпочтения заказчика и тщательно прорабатывается стиль.
Архитекторы наблюдают за этапами строительства. При разработке проекта предлагается единая стилевая композиция внутренней и внешней отделки дома. Наши специалисты готовы воплотить в жизнь идеи любой сложности. Мы строим те дома, о которых мечтают наши заказчики. Продуманная планировка в проектировании домов гарантирует безопасность и функциональность будущего здания.
Рассчитать проектное предложение
В нашем каталоге есть готовые решения. Кроме того, специалисты компании готовы предложить эксклюзивные проекты, с учётом бюджета и пожеланий клиента. Например, общественные здания. Применяются надежные технологии и материалы. Их качество проверено десятилетиями. Грамотному специалисту под силу превратить малоэтажное строение в произведение искусства. Доверьте опытным инженерам проектирование домов, цена будет зависеть от архитектурной сложности, площади объекта и объема работ. Мы уже построили сотни жилых домов, включая коттеджи и таунхаусы.
Этапы строительства
1 этап — Производство и доставка домокомплекта.
После заключения договора на производство отправляется заказ на изготовление домокомплекта согласно выбранному проекту. Далее следует доставка домокомплекта на участок заказчика, его приемка согласно проектной документации и раскладка на участке для удобства сборки.
2 этап — Монтаж фундамента.
Как правило в качестве фундамента для дома из СИП-панелей используют свайно-винтовой фундамент, мелкозагубленный ленточный, столбчатый или монолитную плиту. И все же наиболее распространенным вариантом остается свайно-винтовой, ввиду всесезонности и простоты его монтажа, экономии средств и времени на его установку.
3 этап — Обвязка фундамента брусом
Обвязочный брус равномерно распределяет нагрузку на фундамент и служит основанием для монтажа перекрытия первого этажа.
4 этап — Монтаж перекрытия первого этажа.
На обвязочный брус монтируются панели перекрытия. Они же служат полом и основанием стен Вашего будущего дома. Для защиты от влаги обвязочный брус и панели снизу покрываются битумным праймером. Сверху на панели перекрытия крепится обвязочная доска стен.
5 этап — Монтаж стен первого этажа.
На этом этапе к обвязочной доске в соответствии с проектной документацией крепятся панели стен, монтируются дверные и оконные проемы. Межэтажное перекрытие чаще всего мы делаем из СИП панелей и изредка собираем из балок по желанию Заказчика.
6 этап — Строительство второго этажа.
Строительство второго этажа по своей сути повторяет все этапы и работы возведения первого этажа. Чердачное перекрытие отделяет верхний этаж от холодного чердака. Перекрытие мы выполняем также по СИП технологии. Второй этаж может быть мансардного типа полностью из СИП-панелей.
7 этап — Монтаж крыши.
На этом этапе собирается стропильная система крыши, монтируются мауэрлаты, коньковые балки.
8 этап — Установка окон и входных дверей.
После сборки дома устанавливаются окна и входные двери. Делать это можно сразу, т.к. дома из СИП-панелей не дают усадки!
9 этап — Монтаж кровельного покрытия.
Крыша из СИП-панелей может быть покрыта любым видом кровельного материала на Ваш вкус. Единственное требование — оставление вентиляционного зазора между панелями крыши и материалом кровли.
10 этап — Внешняя отделка и подвод коммуникаций.
У внешней отделки домов из СИП-панелей никаких ограничений не существует. Фасад дома может быть обшит сайдингом, блок-хаусом, фасадными панелями, отделан натуральным или искусственным камнем, облицован кирпичем или оштукатурен. Одновременно с работами по внешней отделке в Ваш дом могут быть проведены коммуникации.
11 этап — Внутренняя отделка
Многообразие современных материалов для внутренней отделки, например, одноэтажного дома, позволит Вам воплотить в жизнь любые дизайнерские решения. Стены, полы и потолок в доме уже идеально ровные и никакой дополнительной подготовки их не требуется. Отделку стен можно монтировать непосредственно на СИП-панель, либо предварительно обшив ее гипсокартоном. При этом, гипсокартон можно крепить без использования направляющих профилей. Напольное покрытие также может монтироваться непосредственно на панели, однако, мы все же советуем следовать рекомендациям производителя товара.
